


Schoolholm 15 G
9711JD Groningen
Beschrijving
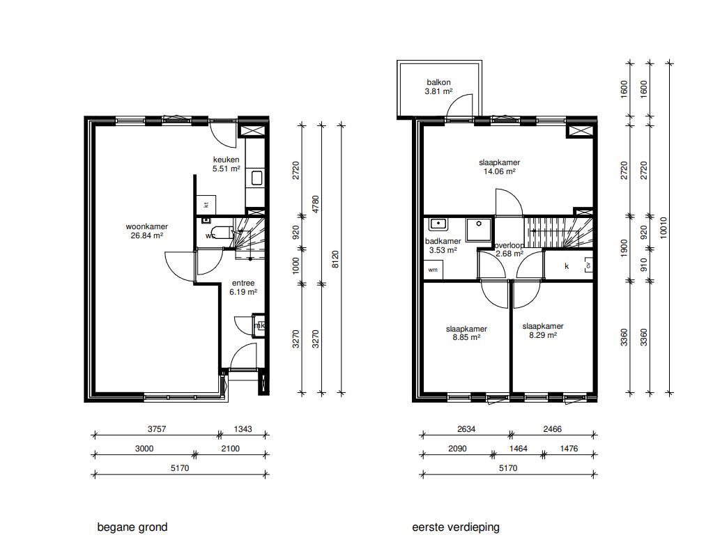
Leuke ruime woning met 3 slaapkamers en balkon in de binnenstad van Groningen. De woning is verdeeld over 2 woonlagen. U woont hier in een rustige straat. De vismarkt is hier bijna om de hoek gelegen en in de buurt vindt u diverse voorzieningen. Het station is per voet in 10 minuten te bereiken. In de woning vinden een toilet- en keukenrenovatie plaats.
De nieuwe huuringangsdatum is per 14 november 2025.
Deze woningen zijn bedoeld voor gezinnen met inwonende kinderen.
Zijn de kinderen niet op jouw adres ingeschreven? Dan is er een officieel bewijs van een gelijkwaardige zorgverdeling (50/50) nodig. Dit bewijs kan geleverd worden in de vorm van: een ouderschapsplan opgesteld via een mediator of advocaat, of een gerechtelijke uitspraak of beschikking waarin de zorgverdeling is vastgelegd.
Minimaal inkomen voor deze woning: • Voor 1 persoon: € 28.375,- • Voor 1 persoon met AOW: € 27.775,- • Voor 2 personen (inclusief inwonende kinderen): € 38.500,- • Voor 2 personen met AOW: € 37.350,- • Voor 3 of meer personen (inclusief inwonende kinderen): geen eisen Maximaal inkomen voor deze woning (dit geldt niet voor wijkvernieuwingsurgenties en rolstoelindicaties): • Voor 1 persoon € 49.669,- • Voor 2 of meer personen € 54.847,- |
Kenmerken
Indeling
Locatie
Groningen
9711JD
Interesse in deze woning?
Klaar om je nieuwe huis te vinden?
Registreer nu gratis en krijg toegang tot alle woningen
Gratis aanmelden