




Ruiterstede 7
3431XP Nieuwegein
Beschrijving
2-Kamer appartement aan de Ruiterstede in Nieuwegein. Het appartement ligt op de begane grond en beschikt over een terras op het Oosten.
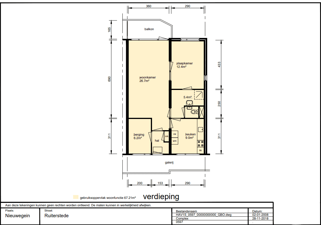
Indeling
De woning beschikt over een woonkamer, een gesloten keuken waar u elektrisch kunt koken, 1 slaapkamer, een badkamer en een toilet. De woning wordt verwarmd d.m.v. blokverwarming.
Er is een inpandige berging aanwezig.
Omgeving
De woning ligt gunstig gelegen ten opzichte van de winkels, scholen en diverse parkjes. Je bent met de auto en/of fiets binnen enkele minuten op CityPlaza. Diverse uitvalswegen (A2/A12/A27) zijn nabij. Nieuwegein is ook erg goed bereikbaar met het openbaar vervoer (tram/bus).
Bezichtiging
Kandidaten die in aanmerking komen voor de bezichtiging ontvangen na sluitingsdatum van de advertentie nog een uitnodiging met de definitieve datum en tijdstip.
Bijzonderheden
Let op: het plaatsen van een schotelantenne is niet toegestaan bij deze woning.
65+
Bij 65+ maximaal 2 personen: geen kinderen toegestaan.
Bent u 50 jaar of jonger of met meer dan 2 personen, dan kan er een intake plaatsvinden.
Kenmerken
Indeling
Locatie
Nieuwegein
3431XP
Interesse in deze woning?
Klaar om je nieuwe huis te vinden?
Registreer nu gratis en krijg toegang tot alle woningen
Gratis aanmelden